25 октября 2019 в 14:54

Мэрия Владимира готова заплатить 4 млн за новую концепцию парка у ДТЮ

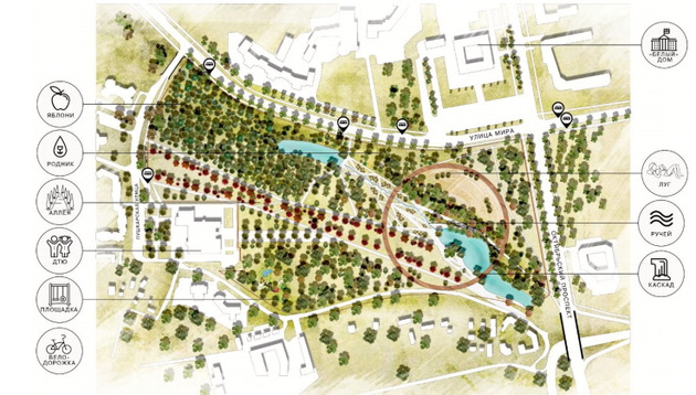
Фото: Александра Лускатова
Цену выше рыночной установили в расчете на столичных проектировщиков. По мнению горадминистрации, во Владимире нет организации, способной выполнить поставленную задачу.

Мэрия хочет, чтобы авторы создавали концепцию в тесном взаимодействии с горожанами. Как раз об этом в своей петиции на имя сити-менеджера Андрея Шохина просили владимирцы. Она так и называлась "Благоустройте парк у Белого дома по программе "Городская среда" с учетом мнения жителей!". В ответе на петицию мэрия пообещала широкое общественное обсуждение и вот теперь от будущего разработчика требует представлять горожанам даже промежуточные результаты.

Работа над концепцией будет строиться следующим образом:

На первом этапе должен быть проведен анализ градостроительной ситуации, планировочной и транспортной инфраструктуры, а также мнения жителей путем общественных обсуждений.

Далее на общественные обсуждения предполагается вынести предварительную концепцию с функциональным зонированием территории.

И наконец, третьи общественные обсуждения запланированы уже для дизайн-проекта.

Начальник проектного управления Антон Аручиди ожидает, что во Владимире высадится десант московских проектировщиков, которые будут проводить исследования местности и общественного мнения. Отсюда и стоимость работ - вдвое превышающая цену корректировки генплана и Правил землепользования и застройки вместе взятых.

Архитектор Александра Лускатова, ранее разработавшая концепцию благоустройства этого парка, сказала "ВВ", что это цена оправдана с учетом детальной проработки материала и углубленного изучения мнения жителей. Однако по мнению Лускатовой, в данном случае правильнее было бы проводить не торги, где победитель выбирается по принципу "кто сделает дешевле", а архитектурный конкурс на лучший проект.

В настоящее время существуют несколько концепций благоустройства 26 гектаров долины Лыбеди у ДТЮ.

Самая ранняя - даже не концепция, а проект 1984 года, разработанный институтом "Владимиргражданпроект". Он предусматривал создание рядом с дворцом пионеров "Детского парка".

В 1990-х "Владимиргражданпроект" планировал устройство набережной Лыбеди, парадный сквер напротив Белого дома, который соединялся бы с Детским парком.

Есть проект планировки территории 2010 года, разработанный архитектором Павлом Миряшевым во время его работы в институте "Владимиргражданпроект". В этом документе уже предусмотрена застройка 4 гектаров на углу улицы Мира и Октябрьского проекта. Там запланированы трогово-выставочный комплекс и общественно-развлекательный центр.

Позже эта концепция была дополнена огромным числом коммерческих площадей, за что, собственно, и подверглась резкой критике.

Концепция Александры Лускатовой появилась в 2018 году в качестве выпускной работы по программе Архитекторы.рф под эгидой Минстроя и Института "Стрелка". Эта концепция уже дважды выносилась на обсуждение местных жителей: во время Арт-субботника 18 мая и Ресторанного дня 17 августа. Пожелания горожан, а они поддержали концепцию и дополнили ее, были обобщены и направлены в мэрию.

Концепция Лускатовой не предусматривает грандиозного изменения ландшафта и масштабного строительства. Молодой архитектор опирается на естественный природный каркас местности, который можно превратить в рекреационное пространство ценой небольших вложений. Если кратко описать суть благоустройства, то это расчистка зарослей с сохранением основного массива деревьев, создание сети дорожек и насыщение парка разнообразными площадками: детскими, спортивными. Сюда же относятся кинозал под открытым небом, места для пикников и тихие зоны с красивыми видами. Эта концепция исключает строительство в парке.

Примечательно, что "красный треугольник" в мэрии рассматривают как часть парка, и концепция, которую заказывает горадминистрация, определит и его судьбу тоже. Антон Аручиди, выступая на комитете горсовета, высказал мнение, что в общественно-деловой зоне могут появиться парковки для посетителей или входная группа, которая, по его словам, "в зеленой зоне" быть не может.

Это, конечно, не так. Входная группа - это неотъемлемая часть парка, если, конечно, она не является элементом торгово-офисной застройки, как это было в проекте "Парка эпох".

Аручиди пообещал: жителей Владимира спросят, что они хотят видеть в этом месте. Правда, и этот опрос уже проводился во Владимире. Ровно год назад 97% местных жителей высказались за парк.

Торги на разработку концепции мэрия намерена объявить в этом году, хотя финансирование работ запланировано в бюджете 2020 года.

Ранее мы сообщали: Департамент строительства и архитектуры проверит генплан Владимира

^
Нашли опечатку в тексте? Выделите её и нажмите Ctrl + Enter.
вчера в 21:39 Жительница Коврова через прокуратуру добилась выплаты зарплаты и компенсации
В результате оперативного реагирования сотрудников ковровской городской прокуратуры была устранена проблема невыплаты зарплаты сотруднице фабрики по производству мебели. Благодаря усилиям ведомства пострадавшая сотрудниц…
вчера в 21:24 Прокуратура недовольна состоянием контейнерных площадок в Селивановском районе
Прокуратура Селивановского района провела проверку соблюдения властями сельских поселений норм благоустройства. Особое внимание было уделено состоянию контейнерных площадок, предназначенных для сбора твердых бытовых отхо…

Для улучшения работы сайта и его взаимодействия с пользователями мы используем файлы cookie и сервис Яндекс.Метрика. Продолжая работу с сайтом, Вы даете разрешение на использование cookie-файлов и согласие на обработку данных сервисом Яндекс.Метрика. Вы всегда можете отключить файлы cookie в настройках Вашего браузера.